- 1ヒアリング
お客様のもとへ担当者が伺います。
イメージやご予算、ご要望をしっかりとヒアリングさせていただきます。
- 2現地調査
ご移転先・新装工事場所が確定している場合は、担当者がお伺いし建物の内寸や設備などを確認・採寸いたします。
弊社は不動産部門もございます。移転計画のご希望に合わせた ビルのご紹介や、テストプランの作成も可能です。
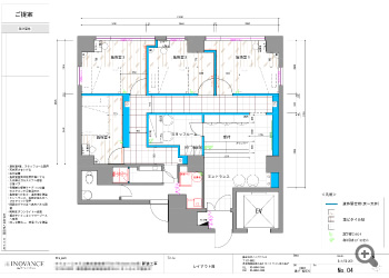
- 3設計・デザイン
お客様にヒアリングした内容をもとにプランニングを行います。 ご意見・ご要望をおうかがいし整理した上で、デザイン的な見栄えだけでなく、機能性も考慮したプランを設計。
ご要望+αの提案を意識し、お客様のお考えを具体的なカタチに致します。図面だけでなくCGやイメージを作成し、わかりやすいプランとしてお見せします。
- 4ご提案
レイアウト図、イメージCG、素材やお見積、工程表等をご用意してご説明させて頂きます。
ご不明点などあればすぐにお申しつけ下さい、ご納得いただくまでお打合せやご提案をさせていただきます。
イノヴァンスではここまで無料で行います。
- 5ご契約
ご提案内容がまとまり、金額のご了承を頂ければ契約となります。

- 6施工
現場担当者と設計担当者が打ち合わせをし、お客様のご希望通りに仕上がるよう自社の施工管理の現場担当者がしっかりと現場管理を致します。

- 7お引越し
問題なく工事が終わりましたらお客様立ち合いのもと、お引渡しをさせていただきます。

- 8お引越し
お引越しも弊社で責任を持って行います。
小規模なお引越しから、綿密な計画が必要な大規模移転など、お客様の手を煩わせないよう引越しの手引きの作成や事前説明会を行い、当日のタイムスケジュール管理も行います。
- 9アフターフォロー
イノヴァンスは「新しいオフィスが完成したら終わり」ではなく、実際に業務を開始されてからのフォローが大切だと考えています。
末永くお付き合いしていただける様、定期的にご訪問させていただき状況の確認をさせて頂きます。


